PortfolioCéline Stocker
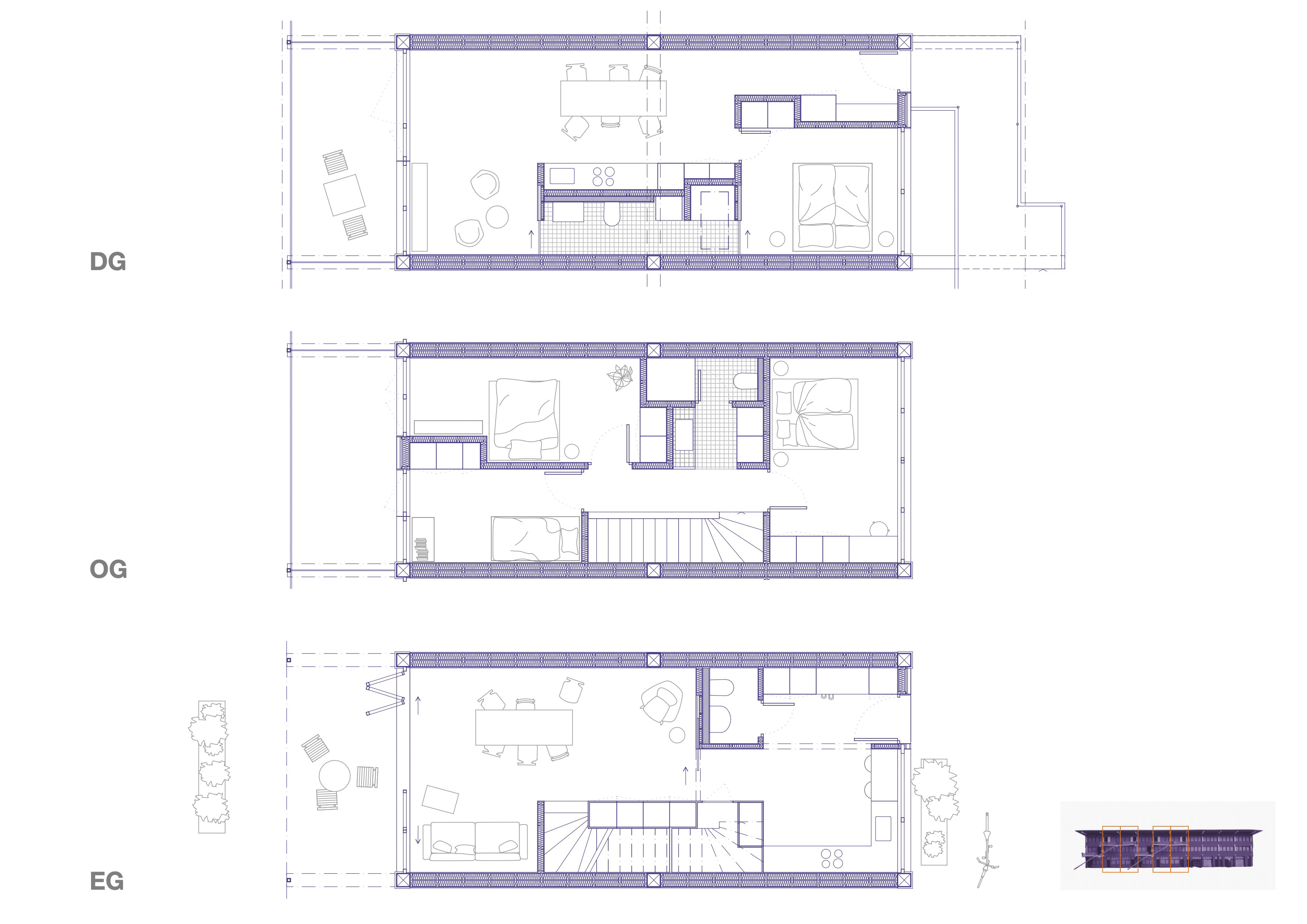
LEBENSFORMENstanden im Mittelpunkt des dritten Semesters im Wohnungsbau, als wir über mögliche Zukunftsszenarien von Gebilden spekulierten, die sich an veränderte Bedürfnisse anpassen können. Die ausgewählten Industrie- und Gewerbebauten boten die Gelegenheit, grundlegend über zukünftige Formen von Wohn- und Lebensraum nachzudenken und passende Strategien zu entwickeln. Dabei wurde Wohnraum für 50 Menschen geplant, kombiniert mit Atelierräumen, Maisonnettes und Wohnungen im Erdgeschoss, die in Kontakt mit dem Alltag der Arbeitenden der Wasserpumpen-Werkstatt von nebenan traten.